Complesso in vendita

Castel Mella, Via Quinzano
€ 670.000
7 locali 7 locali
650 Mq 650 Mq
5 bagni 5 bagni

Complesso in vendita

Castel Mella, Via Quinzano

Descrizione annuncio

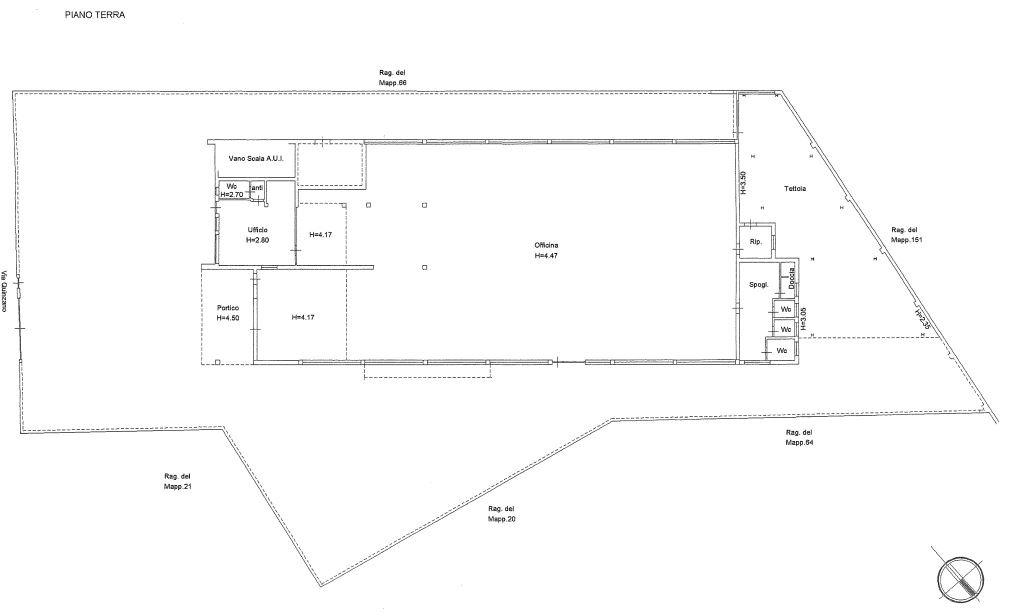
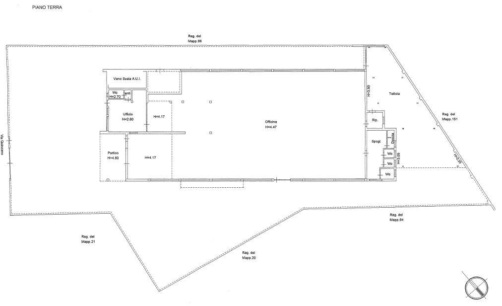
Nella zona di Castel Mella proponiamo in VENDITA capannone laboratorio di circa 650 mq in zona di forte passaggio automobilistico.

La soluzione si divide in un grande openspace con zona ufficio e tre servizi igienici con antibagno e due docce.

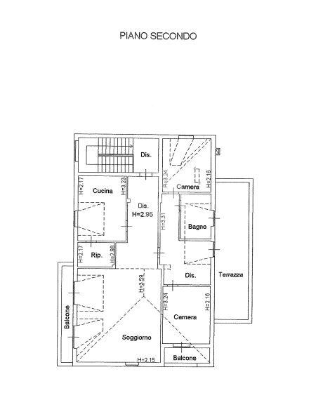
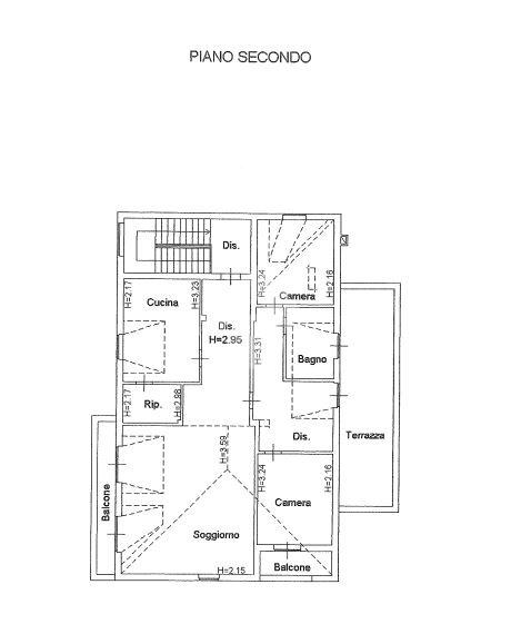
Presente al primo piano un magazzino di 250 mq a rustico, trasformabile in appartamento e un grande appartamento al secondo piano .

La soluzione dispone di due ingressi carrai, un ingresso pedonale che conduce agli uffici e un piazzale privato di circa 800 mq che circonda l'immobile sui tre lati, sul retro è presente una tettoia.

Ingresso indipandente per gli appartamenti.

Il riscaldamento e il raffrescamento sono presenti nella zona uffici con split.

Non sono presenti spese condominiali.

Gli impianti elettrico, idraulico e d'illuminazione sono funzionanti.

Mostra tutto

Nelle vicinanze

Trasporto pubblico Trasporto pubblico
v.le dei Caduti 56
v.le dei Caduti 56
140 m
v.le dei Caduti 31
v.le dei Caduti 31
240 m
Ricariche auto elettriche Ricariche auto elettriche
Burger King Castel Mella
3,0 Km
Scuole Scuole
Scuola Secondaria di Primo Grado Emiliano Rinaldini
1,4 Km
Scuola Primaria
1,5 Km
Materna Comunale
1,7 Km
Farmacia Farmacia
Farmacia Saleri
1,8 Km
Supermercati Supermercati
MD
390 m
Famila
690 m
Conad
2,0 Km
Family Market
2,1 Km
Eurospin
2,6 Km
Bar Bar
Effebar
1,9 Km
Lattepiù
2,1 Km
Farenait
2,7 Km
Ristoranti Ristoranti
Pizzeria Ristorante Costa Azzurra
470 m
Self Tavolamica
490 m
Blue Jeans
820 m
Taka Take Away
1,3 Km
Bar Trattoria Tucano Reloaded
2,1 Km
Mostra tutto

Caratteristiche

Rif.:
61206071
Piano:
3 di 3 (Piano su più livelli)
Box:
1
Posti auto:
3
Balconi:
1
Condizionamento:
Autonomo
Mostra tutto
Prezzo Prezzo
€ 670.000
Rata mutuo Rata mutuo
€ 3.175 / mese
Spese annue Spese annue
€ 0
Proponi il tuo prezzoProponi il tuo prezzo

Classe Energetica

G
G
G
G
G
G
G
G
G
EP globale non rinnovabile:
88.00 kW h/m² anno
EP globale rinnovabile:
88.00 kW h/m² anno
EP invernale del fabbricato:
EP estiva del fabbricato:
Anno di costruzione:
1974
Riscaldamento:
Autonomo
Tipo impianto:
Ad aria
Tipo alimentazione:
Aria

Ti interessa visionare l'immobile?

Fissa un appuntamento  Fissa un appuntamento

Richiedi informazioni

Clicca su Leggi per aprire l'informativa
* Questi campi sono obbligatori

Calcola il tuo mutuo

Semplice e senza impegno
Anticipo

( % )
Mutuo

( % )

pochi semplici passi

inserisci i tuoi dati
Questionario completato
Grazie per aver richiesto un appuntamento senza impegno con un nostro Consulente del Credito e Assicurativo.

Hai inserito correttamente tutti i dati necessari e a breve riceverai una e-mail con un link da convalidare per inviare i tuoi dati.
Affiliato
Studio Impresa 1 Srl
Via Orzinuovi, 42A 25125 Brescia (BS)

Il nostro staff


  • Simona Forti
    Affiliata

  • Alessio Bertoglio
    Affiliato

  • Niccolò Olivetti
    Affiliato
Via Orzinuovi, 42A 25125 Brescia (BS)
Zona: Brescia Centro - Brescia Sud/Ovest - Zona Industriale - Castel Mella - Cellatica
Mostra su mappa
Orari: dal lunedì al venerdì dalle 8:30 alle 12:30 e dalle 14:30 alle 19:00; sabato dalle 8:30 alle 12:30
Affiliato
Studio Impresa 1 Srl
Via Orzinuovi, 42A 25125 Brescia (BS)

2026 Tecnocasa Franchising S.p.A. - P. IVA 08365160152 - Via Monte Bianco 60/A 20089 Rozzano (MI). Ogni agenzia ha un proprio titolare ed è autonoma. Privacy policy | Policy utilizzo | Cookie policy